
有機熱載體爐是一種新型的特種鍋爐又稱導熱油爐,具有低壓、高溫工作特性,其 供熱溫度可達到液相340℃或汽相400℃度。凡是需要均勻穩定地加熱,且不允許火焰直接加熱的工藝加熱溫度在150℃-380℃之間的各種生產場合中都可以采用有機熱載體供熱。有機熱載體爐一般以生物質顆粒、油、汽為燃料,以導熱油為介質,利用熱油循環油泵強制介質進行液相循環,將熱能輸送給用熱設備后再返回加熱爐重新加熱,具有在低的壓力下獲得高的工作溫度,并且能對介質運行進行高精密控制工作。系統熱利用率高,運行維修方便,是一種安全、**、節能的理想**供熱設備。
1、液相循環供熱,無冷凝排放熱損失,供熱系統熱效率高。
2、獲得低壓高溫熱介質,調節方便,供熱均勻,可以滿足**的工藝溫度。
3、工作介質受熱及放熱和溫度升降對體積的變化,在系統內有補償技術措施。
4、循環供熱前有嚴格控制工作介質內空氣、水分及其他低揮發物含量的技術措施。
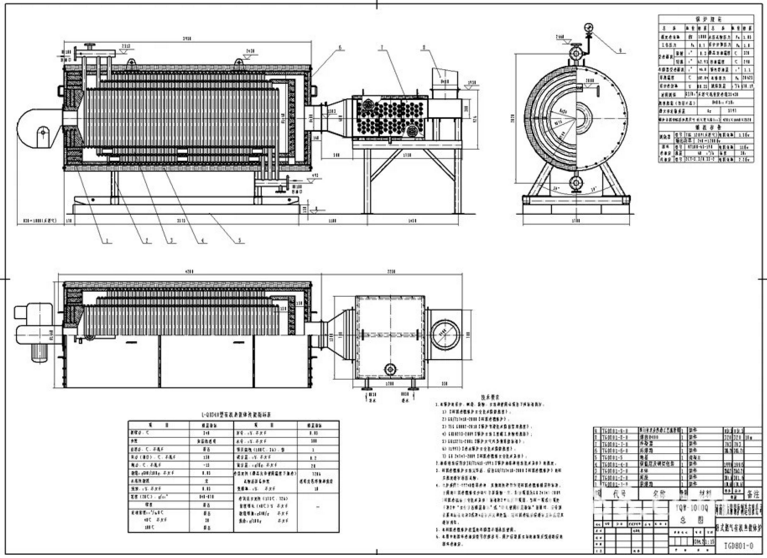
5、大直徑燃燒室:鍋爐燃燒室由大直徑盤管組成,燃料燃燒空間足,燃燒**,熱效 率高。
6、*佳盤管設計:爐體內、外螺旋盤管采用多頭、小管徑鋼管制成,盤管的熱膨脹性能好、應力低、安全可靠。
7、*佳流程設計:煙氣三回程,介質流經內外盤管,流速均勻,運行安全、穩定。
8、出力足:受熱面布置合理,面積大,傳熱效果好,效率高、出力穩定充足。
9、多功能安全防爆裝置:爐體尾部設有與爐膛連通的防爆裝置,泄放燃料在爐膛中發
生劇烈爆燃時,sh瞬間產生的高能量,能自動復位,同時具有觀火視鏡和檢修通道的功
能作用,利用運行中燃燒火焰的調整,爐膛檢查、維護方便。
10、煙箱密封**:爐蓋采用整體結構,多級迷宮式密封,密封工藝和材料特制,壓縮
性好,**隔阻煙氣的泄露,可重復使用。
11、自動控制措施完善:出油溫度控制**,介質溫度、壓力及超煙設置多重控制保
護,確保運行安全可靠。
12、自動控制水平**:鍋爐控制器采用西門子/德力西電器元件,性能可靠。具有液
晶顯示中英文菜單型,人機對話遠程控制的觸摸屏型。




名 稱:新鄉市新大鍋爐容器有限公司
傳 真:0373-5591968
聯系人:王經理
手 機:15837372021 18738300055
郵 編:453731
商務QQ:3022209105
網 址:http://www.zeilahao.cn